Производство 850 м2/ Офис 360 м2

Обзор
Арендная плата (Долгосрочная)
1 213 000
Цена кв.м. в год
4 621
Коммунальные услуги включеныНет
Отчетные документыЕсть
Тип зданияДругой
Тип парковкиНа улице
Вход cian (avito)Отдельный с улицы
Тип арендыПрямая
РемонтХороший
Планировка cianСмешанная
Отделка помещения коммерческаяОфисная
Право собственностиСобственник
Тип недвижимости (Гипернн)Помещение
Состояние cianОфисная отделка
Ремонт коммерческаяхороший
Тип отопления cianТвердотопливный котел
Тип дома cianКирпичный
Удаленность от дороги (авито)Вторая линия и дальше
Мощность электросети, в кВт88
Тип коммерческойПроизводственное помещение
Площадь, кв.м.3150
Этаж1
Этажность2
Адрес
Населенный пунктОмск
Район городар-н. Центральный
Улицаулица 10 лет Октября
Номер дома219/6а
В избранное Производство 850 м2/ Офис 360 м2

Аренда от собственника, без комиссии для арендатора.

Месторасположение: г.Омск, ул.10 лет Октября, 219/6а. 

На выезде из города в сторону г. Новосибирск (фед. трасса Р254), 15 минут езды до центра, остановка общественного транспорта ""в двух шагах".

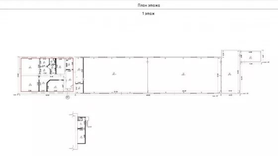
Производственная площадь 850 м2, офис 360 м2.

Холодный склад 170 м2.

Территория земельного участка 3150 м2

Выделенная мощность эл.энергии: 88 кВт.

Отопление: угольный котел роботизированный (биг бэги).

Запланировано подключение к централизованному отоплению.

Холодное водоснабжение (водонагреватели), центральная канализация.

Высота потолка в боксах 6м., ворота 4.2 х 3.0 м.

Все помещения в хорошем состоянии, в офисной части сделан качественный ремонт.

Территория перед зданиями уложена дорожными плитами.

Вентиляция, кондиционирование, система видеонаблюдения.

Без офисной мебели, но с очень комфортной зоной приема пищи.

Коммунальные платежи оплачиваются отдельно.

На территории базы работает управляющая компания.

Есть обеспечительный платеж в размере месячной арендной ставки.

Все в собственности.

Объект сдается целиком одному арендатору на длительный срок.

Готовы рассмотреть продажу.

Звоните! Ответим на вопросы и организуем показ в удобное Вам время.

 

Расположение

Важно! На карте не всегда указано точное местоположение. Более точную информацию можно узнать у менеджера, разместившего объект