Продажа автомойки в центре
| Стоимость | 15 000 000 |
|---|---|
| Площадь участка, сот | 3 |
| Возможное назначение | Автомойка |
| Вход cian (avito) | Отдельный с улицы |
| Тип сделки авито коммерческая | Продажа |
| Ремонт | Косметический |
| Планировка cian | Открытая |
| Тип коммерческой | Производственное помещение |
| Площадь, кв.м. | 205 |
| Этаж | 1 |
| Этажность | 1 |
| Населенный пункт | Омск |
|---|---|
| Район города | р-н. Центральный |
| Улица | улица Пушкина |
| Номер дома | 64/1 |
Прямая продажа от собственника, без комиссии.
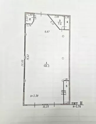
Одноэтажное здание (не является историческим) действующей автомойки по адресу: г.Омск, ул. Пушкина, 64 корп.1. Центр города! Колоссальный автомобильный трафик! Свободная парковка вдоль дороги. Соседство: "Казачий рынок", ТК "Казачья Слобода", супермаркет "Победа" и др. Общая площадь помещения 205 м2. Длина 20 м, ширина 10,25м. Земельный участок около 300 м2. Здание в собственности, расположено на собственном з.участке, оборудовано тремя подъемными воротами: 2 - въезд, 1 - на выезд. Удобный въезд и выезд. Центральные коммуникации. 80 кВт электроэнергии. Есть комната для персонала. Стены кирпичные, крыша металлическая. Одновременно в работе могут находиться 4 автомобиля.
Рассматривается аренда здания автомойки - 150 000 рублей/мес. + к/у.
Звоните! Наши специалисты ответят на ваши вопросы и покажут объект в удобное вам время.





















