Свободного назначения, 960.5 м²
| Стоимость | 61 000 000 |
|---|---|
| Площадь участка, сот | 20 |
| Тип здания | Жилой дом |
| Тип парковки | За шлагбаумом во дворе |
| Вход cian (avito) | Отдельный с улицы |
| Тип сделки авито коммерческая | Продажа |
| Ремонт | Косметический |
| Планировка cian | Кабинетная |
| Планировка avito | Кабинетная |
| Отделка помещения коммерческая | Офисная |
| Право собственности | Собственник |
| Способ связи avito | По телефону и в сообщениях |
| Тип недвижимости (Гипернн) | Помещение |
| Состояние cian | Офисная отделка |
| Ремонт коммерческая | хороший |
| Тип отопления cian | центральное газовое |
| Тип дома cian | Кирпичный |
| Вариант задания цены (avito) | за всё |
| Статус готовности | В эксплуатации |
| Удаленность от дороги (авито) | Вторая линия и дальше |
| Тип коммерческой | Помещение свободного назначения |
| Площадь, кв.м. | 960 |
| Этаж | 1 |
| Этажность | 5 |
| Населенный пункт | Омск |
|---|---|
| Район города | Центральный |
| Улица | улица Рабиновича |
| Номер дома | 132/134 |
Продажа от собственника, без комиссии.
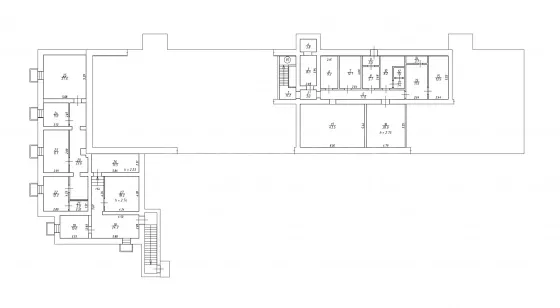
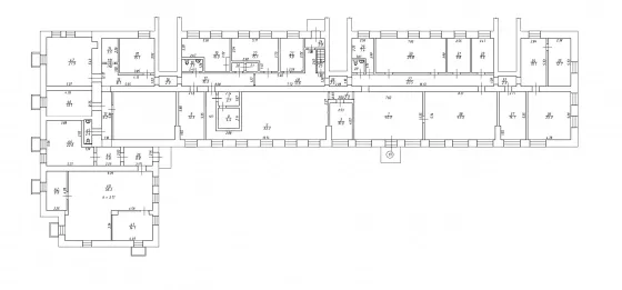
Помещение свободного назначения площадью 960,5 м2 (первый и цокольный этажи) с земельным участком 0,2 Га.
Въезд отдельный, имеется парковочная зона.
Параметры:
- количество помещений: 47 на первом этаже и 27 в подвальной части здания;
- площадь земельного участка: 1891квм (оборудован парковочной зоной) ;
- территория огорожена (оснащена видеонадлюдением и системой доступа) ;
- железобетонные гаражи в количестве 4 шт. (в одном расположен резервный генератор).
Характеристики:
Произведен ремонт и ревизия инженерной системы здания в 2024 году. ведутся ремонтные работы в цокольной части здания для увеличения арендного фонда. Каждое помещение оснащено кондиционером. Подключение к центральным коммуникациям, наличие собственной охраняемой парковки. Имеется резервная дизельная электростанция. Все помещения сданы в аренду.
Фотографии в объявлении представлены не всех помещений.
На все интересующие вопросы готовы ответить по телефону или на просмотре.
Помощь в оформлении бизнес-ипотеки или кредита на развитие бизнеса для покупки недвижимости.
Звоните! Ответим вопросы и организуем показ в удобное Вам время.































